网站首页
关于我们
产品中心
资质证书
新闻资讯
工程案例
联系我们
1
2
您当前的位置:
首页
>
产品中心
>
离心风机
> 产品详情
产品详情
Products details
产品类别
+ 消防排烟系列风机
- HTF(A)系列消防高温排烟轴流风机
- PYHL-14A系列消防高温排烟轴流 ..
- HTFC系列低噪声消防通风柜式离 ..
+ 管道送排风系列风机
- DXG (GDF)系列低噪声矩形管道风机
- DBF系统低噪声离心式风机箱
- GXF(SJG)系列管道斜流风机
- SWF(A)系列高效低噪声混流风机
- HL3-2A系列高效低噪声混流风机
- HLF系列低噪声混流式风机箱
- SDF系列管道式加压轴流风机
- 分体式管道换气扇
+ 侧壁、吸顶排风系列风机
- DWBX系列板壁式轴流风机
- DWEX边墙风机
- DFBZ系列低噪声方形壁式轴流风机
- DZ系列低噪声轴流风机
- T35系列轴流式通风机
- BLD系列低噪声壁式房间通风器
- BLB系列低噪声壁式排风机
+ 屋顶通风系列风机
- DWT-I型低噪声轴流式屋顶排风机
- DWT-II型低噪声离心式屋顶排风机
- DWT-III型低噪声离心轴向屋顶排..
- DWT-IV型无电机涡轮式屋顶排风机
+ 离心风机
- DDL系列单吸式低噪声离心风机
- 4-72、4-79系列离心风机
- 9-19、9-26系列高压离心风机
- C6-48系列排尘离心风机
+ YDF系列喷流诱导风机
+ 通风系列产品
- 防火阀、排烟阀调节阀
- 消声器系列
- 风口系列
产品名称
: 9-19、9-26(A)系列离心风机
广泛用于高压强制通风,如锻冶炉等场合
详细信息
:
一、特性及应用
9-19 9-26 系列离心式通风机,具有风压高,效率高,效率区宽,结构紧凑,运行可靠等优点。
二、性能参数表
9-19 离心风机性能参数表
机号
转速
(r/min)
风量
(m3/h)
全压
(Pa)
功率
(kW)
重量 (kg)
4A
2900
824
1017
1209
3660
3750
3720
2.2
68
1401
1594
1786
1978
3610
3470
3290
3110
3
76
4.5A
2900
1174
1448
1721
1995
4690
4800
4760
4630
4
100
2269
2543
2817
4450
4250
4040
5.5
120
5A
2900
1610
1986
2361
2737
5850
5980
5940
5770
7.5
136
3113
3488
3864
5580
5330
5080
11
184
5.6A
2900
2262
2790
3317
7420
7560
7520
11
208
3845
4373
4901
5429
7320
7080
6790
6500
15
240
6.3A
2900
3221
3972
4723
9480
9650
9590
18.5
288
5475
6226
6978
7729
9360
9080
8720
8370
30
368
7.1D
2900
4610
5685
6761
12140
12350
12280
37
700
7837
8912
9988
11064
12000
11660
11230
10810
45
860
8D
2900
6594
8133
9672
11211
15140
15690
15600
15230
75
1040
12759
14288
15827
14800
14260
13720
110
1070
1450
3297
4067
4836
3790
3860
3840
7.5
570
5605
6375
7144
7913
3740
3620
3470
3320
11
630
机号
转速
(r/min)
风量
(m3/h)
全压
(Pa)
功率
(kW)
重量 (kg)
9D
1450
4695
5790
6886
4840
4930
4910
15
720
7981
9076
10172
11267
4790
4640
4470
4280
18.5
770
10D
1450
6440
7943
9445
10948
12451
6020
6130
6090
5950
5780
30
890
13953
15456
5570
5360
37
920
11.2D
1450
9048
111159
13270
7550
7690
7640
45
1360
15381
17492
19603
21714
7460
7250
6990
6720
75
1600
960
5990
7288
8786
10183
11581
3290
3350
3330
3250
3150
15
1230
12979
14376
3030
2910
18.5
1300
12.5D
1450
12578
15513
18448
9410
9570
9520
75
1700
21383
24317
27252
30187
9300
9030
8700
8370
110
2150
960
8327
10271
12214
4120
4200
4170
22
1400
14157
16100
18043
19986
4080
3960
3820
3670
37
1540
14D
960
11699
14428
17158
5004
5090
5047
37
2300
19888
22618
25348
28078
4917
4709
4494
4249
75
2970
16D
960
17463
21538
25613
6570
6682
6627
75
3780
29687
33762
37837
41912
6456
6180
5898
5575
110
3980
9-26 离心风机性能参数表
机号
转速
(r/min)
风量
(m3/h)
全压
(Pa)
功率
(kW)
重量 (kg)
机号
转速
(r/min)
风量
(m3/h)
全压
(Pa)
功率
(kW)
重量 (kg)
4A
2900
2198
2473
2748
3022
3297
3930
3850
3740
3590
3420
5.5
114
9D
1450
12519
14804
5110
5040
30
900
15649
17214
18779
20344
21909
4920
4770
4590
4380
4160
45
970
3572
3847
3210
3000
7.5
120
4.5A
2900
3572
3847
5010
4920
7.5
132
3912
4303
4695
5086
5477
4790
4610
4400
4160
3900
11
180
10D
1450
17173
19320
21466
6350
6250
6110
55
1090
23613
25760
27906
30053
5940
5730
5480
5220
75
1250
5A
2900
4293
4830
5367
5903
6230
6130
5960
5750
15
210
11.2D
1450
24127
27143
30159
33175
7960
7850
7670
7450
110
2150
6440
6977
7513
5510
5220
4920
18.5
230
5.6A
2900
6030
3786
7870
7740
22
300
36190
39206
42222
7180
6870
6550
132
2250
7540
8294
9048
9802
10556
7540
7300
7000
6670
6310
30
350
960
15974
17970
19967
21964
3470
3420
3340
3240
30
1460
6.3A
2900
8858
9662
10735
10020
9860
9630
45
490
11809
12882
13956
15029
9340
8990
8570
8140
55
580
23961
25957
27954
3120
2980
2830
37
1550
12.5D
960
22207
24982
27758
4350
4280
4190
45
1790
7.1D
2900
12293
13830
12800
12610
75
1050
15366
16903
18439
19976
21513
12330
11970
11540
11050
10520
110
1500
30534
33310
36086
38862
4070
3920
3750
3570
75
2240
8.0D
2900
17585
19783
16250
16010
132
1620
14D
960
31199
35099
5450
5370
75
3100
21982
21180
26378
28576
30774
15650
15200
14660
14030
13360
200
1760
38998
42898
46798
50698
54598
5250
5100
4920
4710
4480
110
3220
1450
8793
9892
10991
4020
3950
3850
18.5
715
16D
960
46571
52392
58213
7120
7020
6860
160
3700
12090
13189
14289
14288
15387
3730
3580
3410
3220
30
800
64035
69856
75677
81499
6660
6420
6150
5850
250
4660
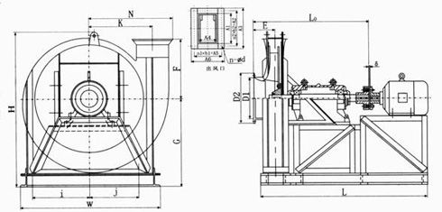
三、9-19 9-26系列风机外形尺寸
9-19 9-26系列 4A -6.3A 离心风机外形尺寸图、表
系列
机 号
D1
D2
D3
n1-Φd1
A1
A2
A3
A4
A5
A6
X
Y
n2-Φd2
9-19
4A
180
220
250
8-7
128
174
214
92
138
178
3
2
10-7
4.5A
200
250
280
8-7
144
198
230
104
152
192
3
2
10-7
5A
224
265
305
8-7
160
206
246
115
1, 60
202
3
2
10-7
5.6A
250
308
348
8-10
179
225
265
129
174
215
3
2
10-7
6.3A
280
335
375
8-10
202
246
288
145
189
231
3
2
10-7
系列
机 号
D1
D2
D3
n1-Φd1
A1
A2
A3
A4
A5
A6
X
Y
n2-Φd2
9-26
4A
224
254
284
8-7
196
228
250
128
165
184
4
3
14-7
4.5A
250
280
310
8-10
221
252
275
144
177
2300
4
3
14-7
5A
280
320
360
8-10
245
284
299
160
192
216
4
3
14-7
5.6A
315
355
395
8-10
274
304
328
179
216
235
5
4
14-7
6.3A
355
395
435
8-10
309
340
365
202
236
261
5
4
10-7
系列
机 号
E
F
G
K
M
N
a
b
c
d
e
f
9-19
4A
108
361
692
286
715
420
200
350
50
300
385
35
4.5A
120
344
716
322
782
450
240
390
50
340
430
39
5A
126
376
788
258
868
500
340
450
50
440
495
43
5.6A
140
415
874
401
962
550
350
480
50
450
534
48
6.3A
157
461
975
451
1085
620
450
570
60
570
626
55
系列
机 号
E
F
G
K
M
N
a
b
c
d
e
f
9-26
4A
132
360
711
287
761
450
240
390
50
340
430
49
4.5A
147
405
799
322
849
500
340
450
50
440
495
55
5A
165
450
887
359
939
550
350
485
50
450
534
61
5.6A
186
504
993
402
1053
620
450
570
60
570
626
68
6.3A
209
567
1117
451
1167
680
550
720
70
690
780
77
9-19 9-26系列7.1D-16D离心风机外形尺寸图、表
系列
机 号
D1
D2
A1
A2
A3
A4
A5
A6
n-Φd
n1×b1
n2×b2
9-19
7.1D
315
395
227
272
313
163
218
248
14-10
3×68
4×68
8D
355
436
256
312
342
184
244
294
14-10
3×76
4×74
9D
400
506
288
348
398
207
263
313
18-10
4×63
5×66
10D
450
550
320
386
426
230
300
340
18-10
1×69
5×72
11.2D
500
620
359
420
484
258
328
388
18-12
4×79
5×83
12.5D
560
680
400
456
489
288
344
380
20-12
4×86
6×76
14D
630
750
448
516
557
322
405
448
22-12
5×81
6×86
16D
710
830
512
574
621
368
440
484
24-12
5×88
7×82
系列
机 号
D1
D2
A1
A2
A3
A4
A5
A6
n-Φd
n1×b1
n2×b2
9-26
7.1D
400
500
348
390
414
227
272
296
20-10
4×68
6×65
8D
450
550
393
432
458
256
300
325
20-10
4×75
6×72
9D
500
620
441
483
507
288
330
357
20-10
4×82.5
6×80.5
10D
560
680
490
528
556
320
356
389
20-10
4×89
6×88
11.2D
630
750
549
600
638
358
410
450
26-12
5×82
8×75
12.5D
710
830
613
664
702
400
456
492
28-12
6×76
8×83
14D
800
920
686
747
795
448
516
564
30-12
6×86
9×83
16D
900
1040
784
840
893
512
588
628
34-12
7×84
10×84
系列
机 号
E
F
G
H
K
N
L0
L
W
i
j
ε
9-19
7.1D
177
466
680
1200
507
656
1230
2100
1150
400
450
4-6
8D
200
525
760
1350
572
733
1256
2220
1250
440
520
4-6
9D
226
590
850
1520
644
821
1289
1930
1400
500
600
4-6
10D
250
656
940
1680
723
908
1317
2060
1500
550
650
6-8
11.2D
280
735
1050
1890
801
1025
1595
2440
1700
600
800
6-8
12.5D
313
820
1160
2100
895
1140
1633
2550
1900
700
900
8-10
14D
350
920
1280
2400
1001
1270
2030
2900
2050
800
950
12-14
16D
400
1050
1440
2700
1144
1460
2090
3400
2250
880
1040
12-14
系列
机 号
E
F
G
H
K
N
L0
L
W
i
j
ε
9-26
7.1D
237
639
730
1260
509
716
1317
2290
1200
420
520
4-6
8D
262
720
810
1410
5740
803
1349
2330
1400
500
600
4-6
9D
294
810
920
1590
646
900
1392
2140
1500
550
650
6-8
10D
327
900
1000
1760
717
995
1433
2260
1600
600
700
6-8
11.2D
367
1008
1130
1980
803
1122
1724
2660
1850
700
850
8-10
12.5D
418
1125
1240
2190
896
1247
1755
2690
1950
740
940
8-10
14D
469
1260
1450
2500
1003
1380
2200
3350
2050
800
950
12-14
16D
524
1440
1540
2800
1148
1610
2270
3650
2300
900
1100
12-14
Copyright © 绍兴市上虞明天风阀成套设备有限公司版权所有